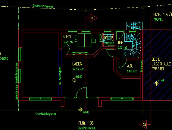
Erdgeschoss