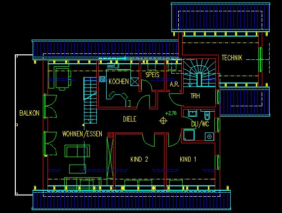
Dachgeschoss